Standardni gorilnik
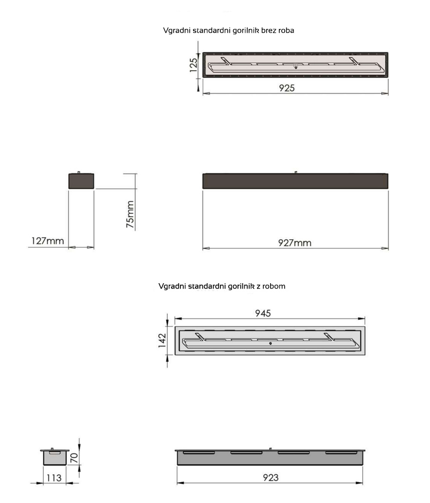
Gorilnik Built-in burner™ z robom ali brez
Vgradni gorilnik na bioetanol, decoflame® Built-in burner™, lahko preprosto vstavite v vnaprej oblikovano odprtino. Pri tem mora imeti gorilnik varnostno posodo, kamor se je ujame bioetanol, če se polije med natakanjem. Varnostna posoda je lahko iz brušenega nerjavečega jekla in ima dodaten rob ali iz črnega prašno barvanega aluminija in brez roba. Obe različici sta na voljo v dimenzijah od 500 mm to 900 mm.
Intenzivnost plamena lahko ročno prilagajate ter s tem zmanjšate ali povečate porabo goriva in oddano toplotno moč.
Standardni gorilnik je namenjen uporabi v zaprtih prostorih, možna pa je vgradnja na različne načine. Pri modelu z robom lahko dodatno izberete stekleno zaščito, da plamen ohranja stabilen. Za uporabo zunaj priporočamo gorilnik, ki je posebej prilagojen zunanjih razmeram.
Kako velik mora biti prostor za posamezno dimenzijo gorilnika?
Hitra montaža
Vsak po meri narejen kamin ali gorilnik decoflame® ima priloženo tehnično skico, navodila za vgradnjo in priročnik za uporabo. Vgradnja je preprosta in vzame le nekaj minut.
Tehnične podrobnosti
| Material | nerjaveče jeklo in prašno barvan aluminij |
| Zaključek | brušeno nerjaveče jeklo |
| Teža | 12 kg |
| Velikost prostora za gorivo | 4,2 l |
| Poraba | 0,42 l/h |
| Moč | 2,4-4,8 kWh |
| Čas gorenja | do 10 ur |
